Loading...

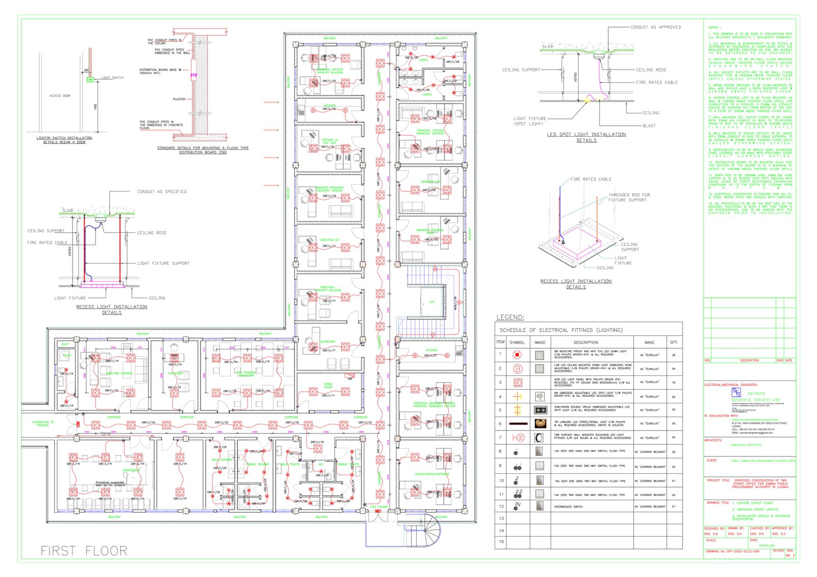
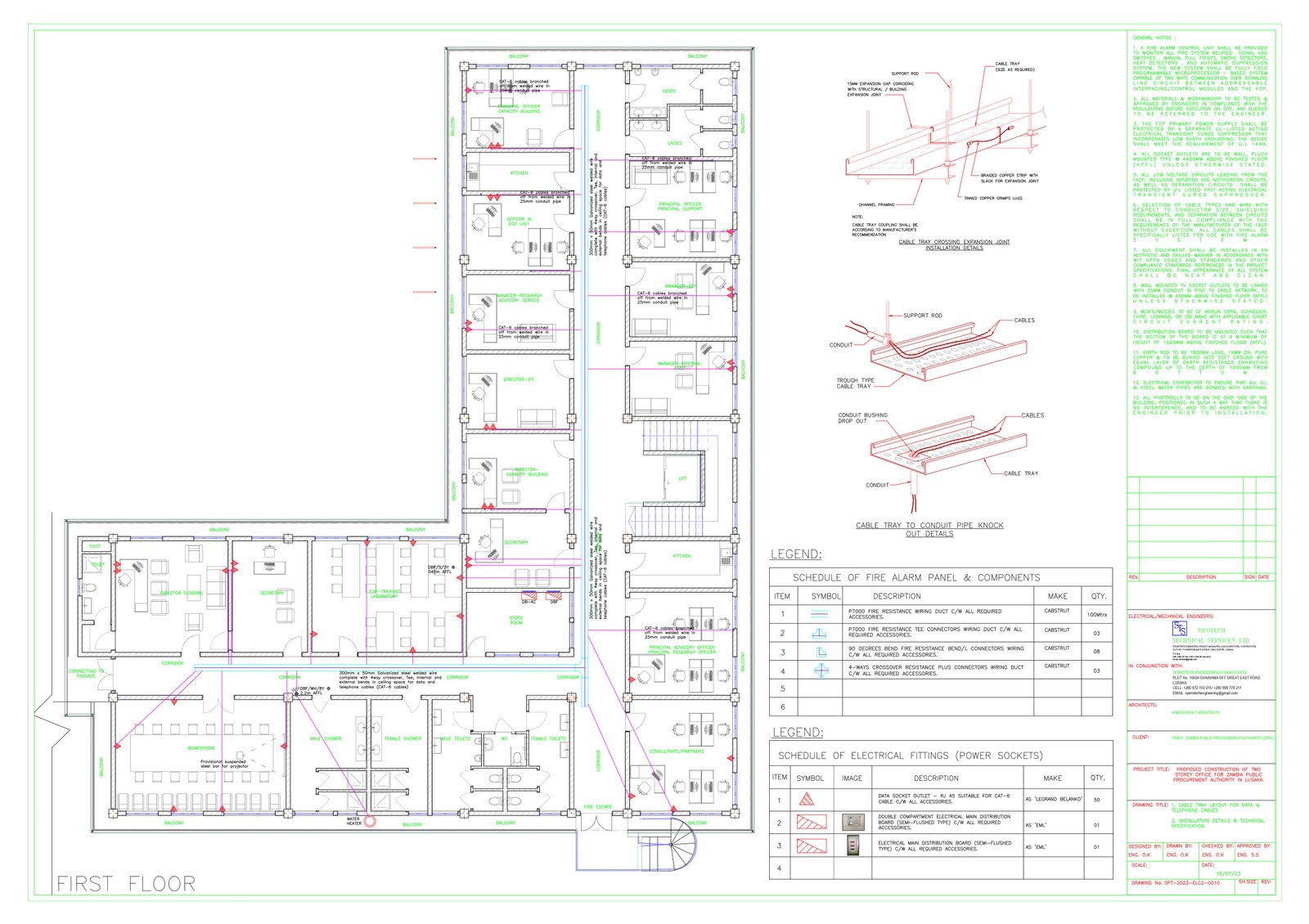
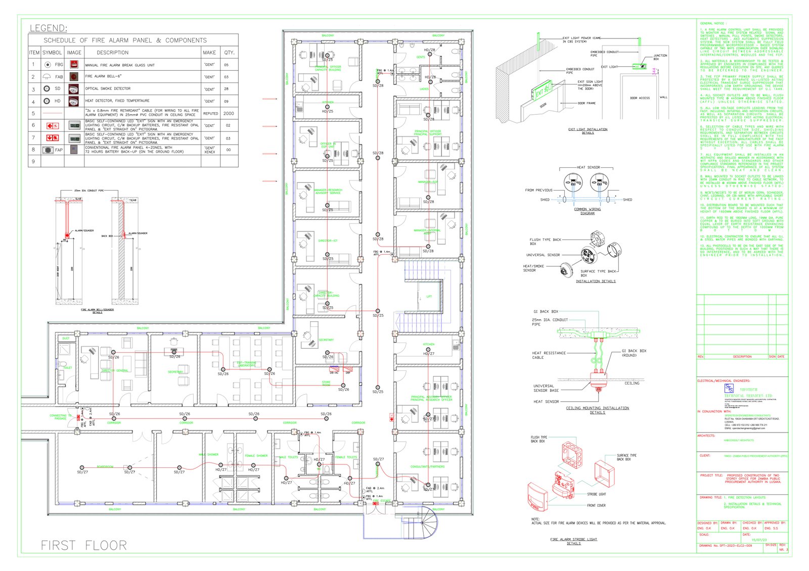
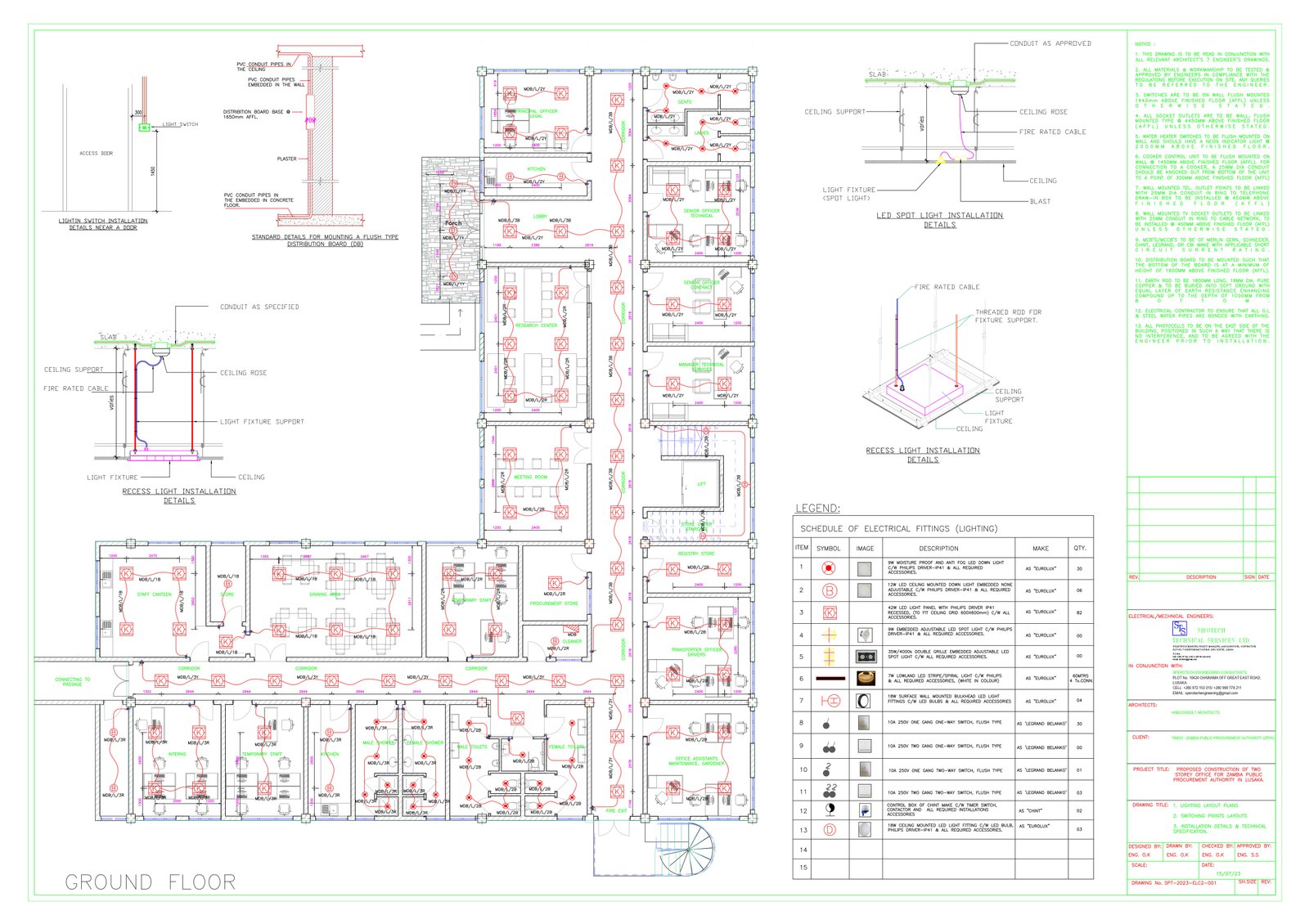
Electrical Drawing Plans

Drawings

Our Designs in Pictures

Explore some of our recent projects, on-site activities, and proud moments captured through the lens.